Revitalisierung – Scheune wird Destillerie
Veranstaltungsraum I Shop I Degustation
Aus einer historischen Scheune entsteht eine zeitgenössische Destillerie mit Verkaufs-, Verkostungs- und Veranstaltungsraum. Das Projekt zielt darauf ab, den authentischen Charakter der historischen Bausubstanz zu bewahren und zugleich eine neue Nutzungsebene zu schaffen, die Handwerk, Genuss und Architektur miteinander verbindet.



Architektur & Konzept
Die tragende Holzbalkenstruktur und das massive Mauerwerk bleiben sichtbar und prägen die räumliche Atmosphäre des Gebäudes. Großzügige Verglasungen öffnen die einst geschlossene Scheune, schaffen Transparenz und ermöglichen Einblicke in die Produktion und Veranstaltungsgeschehen.


Materialkonzept
Das Materialkonzept setzt auf den Dialog von Alt und Neu: Rohe Natursteinwände und der gealterte Dachstuhl treffen auf präzise neue Elemente aus Eichenholz, geschliffenem Estrich und Hanf-Akustikpaneelen. Diese Materialkombination rückt handwerkliche Qualität und den bewussten Einsatz nachhaltiger Ressourcen in den Mittelpunkt.

Raumprogramm
& Erlebnis
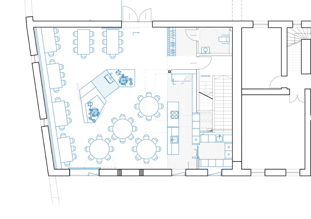
Der Haupteingang führt in den Verkostungsraum – den zentralen Ort des Ankommens und Zusammenkommens. Ein runder Eichentisch aus eigener Forstwirtschaft bildet das räumliche und symbolische Zentrum. Er steht für Regionalität, handwerkliche Authentizität und die enge Verbundenheit zur Umgebung.

Dorfladen
24/7
Angrenzend öffnet sich der öffentlich zugängliche Dorfladen, der im Selbstbedienungskonzept rund um die Uhr regionale Produkte anbietet. Das architektonische Konzept übersetzt so den Gedanken von Offenheit und Gemeinschaft in Raum und Nutzung.



Destillerie I Showküche I Events
Im Obergeschoss befindet sich die Produktionsstätte der Destillerie mit multifunktionalen Veranstaltungsraum. Dieser bietet Raum für private Feiern, kulinarische Events mit Showküche oder Workshops, die den Brennprozess unmittelbar erfahrbar machen. Der freigelegte, originale Dachstuhl ist hier unmittelbar spür- und erlebbar. Er verleiht dem Raum seine unverwechselbare Identität.


Studio Wohnung
Die integrierte Studio-Wohnung vervollständigt das Raumprogramm. Ihr Wohnzimmer wird als prominente schwarze Box aus gebeiztem Eichenholz in den Großraum des Veranstaltungsraums eingeschrieben. Im Kontrast dazu steht der helle, freundliche Innenraum der Wohnung, der Ruhe und Wärme vermittelt.


Erdgeschoss
Verkostung I Shop I Produktion

Obergeschoss
Destillerie I Showküche I Events

Schnitt
Destillerie I Showküche I Events
Verkostung I Shop I Produktion
Projekttyp: Revitalisierung
Projektzeitraum: 2025-2026
Standort: Luxemburg
Team: in Kooperation mit Studio Becollab
Status: in Planung